Detalii despre produs
Important: Vă rugăm să aveți în vedere că sistemele de împrejmuire nu pot fi livrate prin serviciul de curierat clasic din cauza volumului și a greutății mari. Ele se livrează prin flota proprie, iar timpul de livrare depinde în funcție de fiecare locație.Sistemul de poarta autoportanta Casette TZ01.500 este genul de solutie pentru cei care isi doresc o poarta masiva, impunatoare si care ofera un grad ridicat de intimitate.
Modelul este creat dintr-un ansamblu de elemente independente, fiind astfel o solutie sigura, rapida si completa pentru asigurarea accesului in spatiul locativ.
Accesoriile folosite sunt de calitate superioara care asigură o funcționalitate de lungă durată a sistemului de închidere.
Detalii tehnice stalpi:
Material: tabla S235Dimensiuni (mm): 300 latime X 1.856 inaltime x 195 adancime
Grosime tabla (mm): 1,5
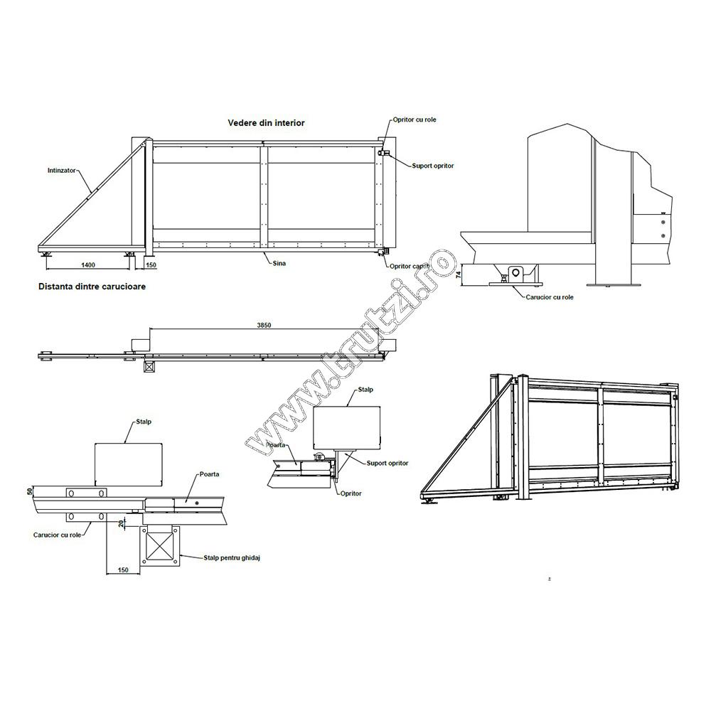
Detalii tehnice poarta autoportanta:
Material: tabla S235Dimensiuni (mm): 5800 latime X 1856 inaltime
Grosime (mm): 3
Kit autoportanta: 61400
Componenta sistem: stalp stanga, stalp dreapta, poarta autoportanta cu accesorii (role de ghidaj, șină, opritor capăt, rulment capăt, etc.) – A se vedea schita.Produsele sunt vopsite in camp electrostatic, cu vopsea pulbere in oricare din urmatoarele variante de culoare: RAL 9005, RAL 9010, RAL 8017, RAL 8320, RAL 7012, RAL 7015, RAL 7024, RAL 9006, in una dintre cele 2 variante de finisaj: texturat fin si texturat mare.Optiuni suplimentare de culoare, la cerere cu cost suplimentar: RAL 3005, RAL 8014, RAL 6005, RAL 7030, RAL 7040, in una dintre cele 2 variante de finisaj: texturat fin si texturat mare.In vederea realizarii montajului, suprafata de teren trebuie pregatita cu fundatie de beton cu etrieri de prindere, la urmatoarele dimensiuni: 800mm adancime X 250mm latime, finalizata +100 mm la nivelul solului pe toata lungimea lucrarii. Pentru detalii consultati schita tehnica din sectiunea foto.Această poartă este compatibilă cu kitul de automatizare BFT ”DEIMOS AC A600” – 66002 care se poate implementa optional, contra cost.




















Încă nu există recenzii.